S’ENTRADOR – Ihr neues Zuhause in Cala Ratjada
Der exklusive Neubau S’Entrador bietet 19 hochwertige Wohnungen auf drei Etagen und 33 Außenstellplätze mit E-Ladevorbereitung. Im Erdgeschoss warten vier Apartments mit eigener Terrasse und Garten. Über zwei Treppenhäuser und Aufzüge erreichen Sie die oberen Stockwerke. Der Gemeinschaftsbereich verfügt über Pool, Sonnenterrasse und Kinderspielplatz. In den ersten bis dritten Etagen liegen jeweils fünf Wohnungen. Das Dachgeschoss bietet eine Gemeinschaftsterrasse für Technik sowie fünf private Dachterrassen mit Poolvorbereitung. S’Entrador verbindet modernes Wohnen, Komfort und Top-Lage – ideal als Hauptwohnsitz, Feriendomizil oder Kapitalanlage.

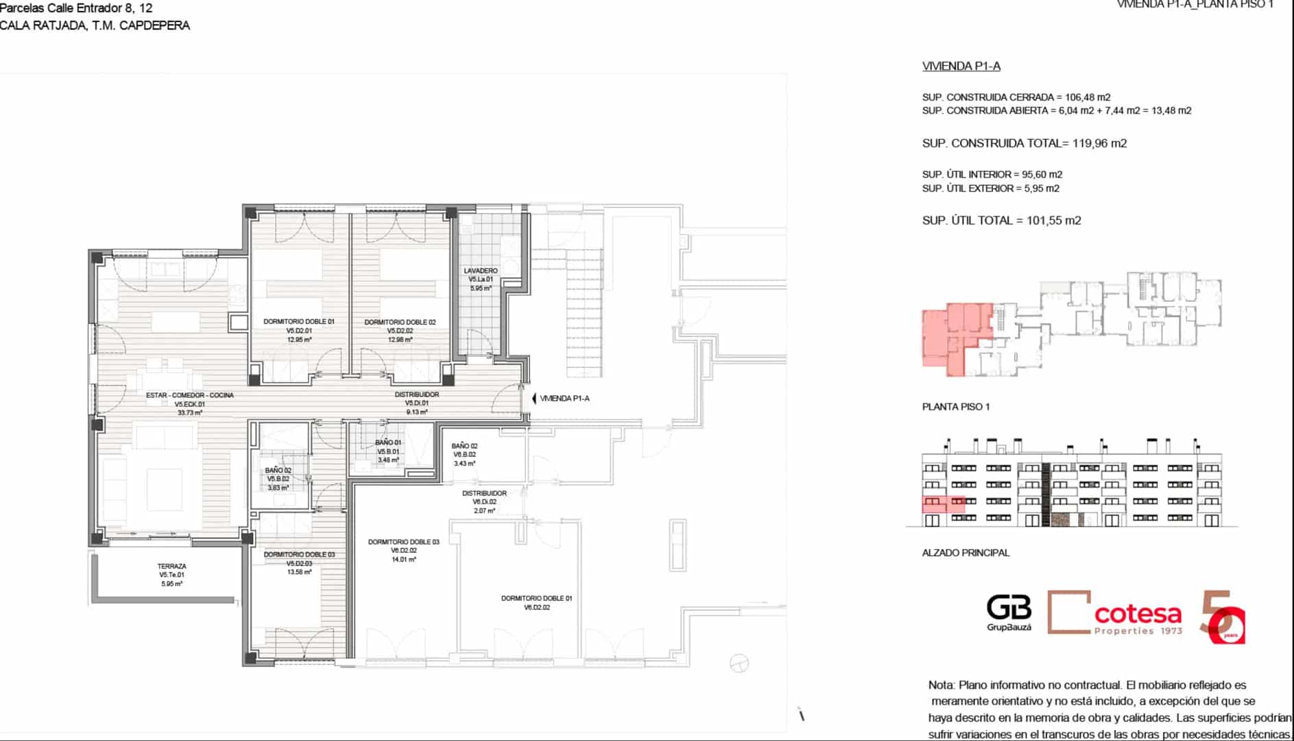
Dieses elegante 3-Schlafzimmer-Apartment im ersten Obergeschoss überzeugt mit 112 m² Wohnfläche, zwei modernen Badezimmern und einem großzügigen Wohn- und Essbereich. Die 7,44 m² große Terrasse lädt zu entspannten Momenten im Freien ein – sei es beim Frühstück oder beim Sonnenuntergang.
Ein PKW-Stellplatz gehört zur Wohnung. Über den Aufzug erreichen Sie Ihre Etage bequem und barrierearm. Als Teil der Gemeinschaft genießen Sie Zugang zum Swimmingpool, zur Sonnenterrasse und zum Kinderspielplatz – perfekt zum Wohlfühlen und Entspannen.
Cala Ratjada – Wohnen, wo andere Urlaub machen
Cala Ratjada liegt im Nordosten Mallorcas und zählt zu den beliebtesten Küstenorten der Insel. Der charmante Hafenort begeistert mit kristallklarem Wasser, feinsandigen Stränden wie Cala Agulla und Son Moll sowie einer lebendigen Uferpromenade mit Restaurants, Cafés und Boutiquen.
Dank seiner privilegierten Lage verbindet Cala Ratjada mediterrane Gelassenheit mit allen Annehmlichkeiten des täglichen Lebens – vom Supermarkt bis zur Strandbar ist alles bequem erreichbar. Die umliegende Natur mit Pinienwäldern und malerischen Buchten bietet unzählige Möglichkeiten zum Wandern, Radfahren und Wassersport.
Ein Ort, der Erholung, Lifestyle und Lebensqualität perfekt vereint – ideal als Wohnsitz, Ferienadresse oder Investment.